2947 Kosse CourtGrapevine, TX 76051
Due to the health concerns created by Coronavirus we are offering personal 1-1 online video walkthough tours where possible.



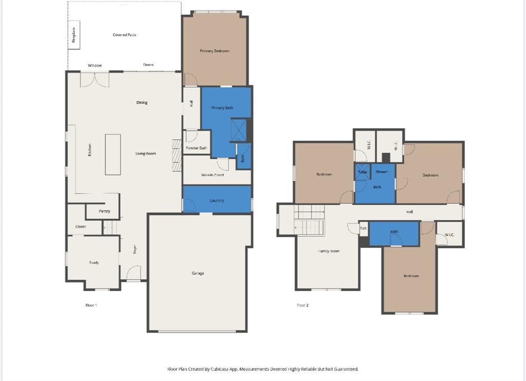
Welcome to Grapevine! This home is nestled in a prime location & a larger lot in the new luxury, yet quaint neighborhood, Dove Station. This new construction home is projected to be finished by the end of 2025 and is ready for its first owners. All the charm of Grapevine combined with Carroll ISD schools! This traditional style house has all the makings of a luxurious next chapter for you along with the warmth & charm of home. From the curb you will be greeted with beautiful landscaping and gas lanterns. Walking in the front door you will fall in love with the oak hardwood floors throughout the living areas and bedrooms. The kitchen has a large island and is open to the living and dining areas, perfect for entertaining. High end appliances in the kitchen including a Thor gas range & oven, Bosch dishwasher & refrigerator, Z-line built in microwave along with custom cabinetry with soft close features. With 4 bedrooms, 4 bathrooms and a study, the possibilities are endless. The living room boasts of a gas fireplace and tall ceilings. You’ll find custom designer finishes throughout the home~thank you to Interior Styling, LLC! Walking out the backdoor you’ll find a covered patio with a fireplace where you can have your morning coffee or relax to round out the end of a long day. Built in surround sound speakers in the living room, primary bedroom and patio. Ring doorbell, security system, tankless hot water heater, insulated with spray foam encapsulation & class 4 roof. So many features to love! Close proximity to Grapevine lake, historic downtown Main Street in Grapevine, upscale Southlake shopping & restaurants, DFW airport and interstates. Don’t miss this fantastic opportunity to call Grapevine home!
| a week ago | Listing updated with changes from the MLS® | |
| 4 weeks ago | Listing first seen on site |
© 2020 North Texas Real Estate Information Systems. All rights reserved. Information is deemed reliable but is not guaranteed accurate by the MLS or NTREIS. The information being provided is for the consumer's personal, non-commercial use, and may not be reproduced, redistributed, or used for any purpose other than to identify prospective properties consumers may be interested in purchasing.
Last checked: 2025-11-22 05:55 PM CST

Did you know? You can invite friends and family to your search. They can join your search, rate and discuss listings with you.