6925 Trail RockBenbrook, TX 76126
Due to the health concerns created by Coronavirus we are offering personal 1-1 online video walkthough tours where possible.

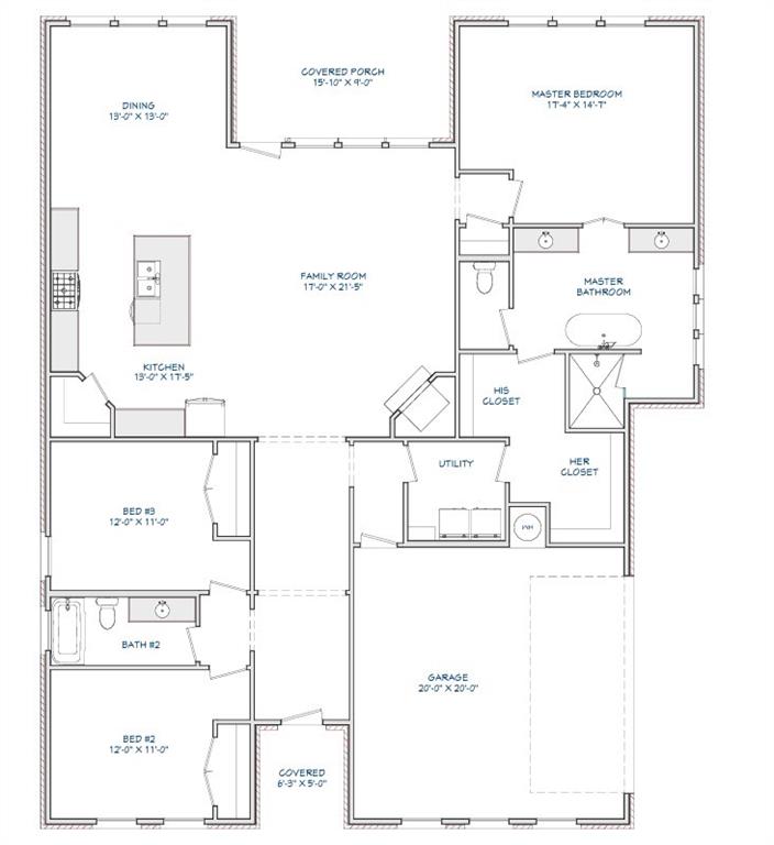
We are excited to share details about a true must-see property that will be ready in early 2026. The exterior features a mix of brick and stone, complemented by black windows with shed roofs and a side-entry two-car garage. Inside, the home offers custom ceiling designs, including a barrel ceiling in the entry, a cake box ceiling, and a cathedral ceiling in the family room, which is anchored by a stone gas fireplace. It also features a spacious dining room. The main highlight of this home is the luxurious master suite. The master bathroom includes his-and-her sinks, a free-standing tub, and a generously sized shower with a rain shower head. The suite is complete with a his-and-her walk-in closets. Please call agent to discuss interior selections.
| yesterday | Listing updated with changes from the MLS® | |
| yesterday | Listing first seen on site |
© 2020 North Texas Real Estate Information Systems. All rights reserved. Information is deemed reliable but is not guaranteed accurate by the MLS or NTREIS. The information being provided is for the consumer's personal, non-commercial use, and may not be reproduced, redistributed, or used for any purpose other than to identify prospective properties consumers may be interested in purchasing.
Last checked: 2025-12-21 03:03 AM CST

Did you know? You can invite friends and family to your search. They can join your search, rate and discuss listings with you.