639 Dove Haven WayLavon, TX 75166
Due to the health concerns created by Coronavirus we are offering personal 1-1 online video walkthough tours where possible.


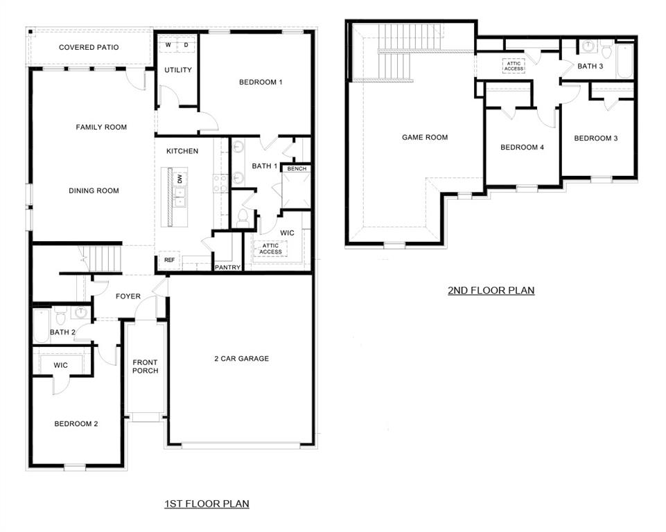
New! Gorgeous Two story! Four bedrooms, three full baths, with huge game room. Home includes, island kitchen, granite counters throughout, LED lighting, full sprinkler system, professionally engineered post tension foundation, and so much more! Perfectly situated on FM 6, just half a mile from Highway 78, Elevon provides easy access to Farmersville, Rockwall, and neighboring towns. Enjoy the proximity to Lake Lavon, just 1-mile away, where you can indulge in camping, picnicking, and various outdoor activities. Don't miss out on the opportunity to make Elevon your new home. Contact us today to schedule a tour and discover the endless possibilities that await you.
| 16 hours ago | Listing updated with changes from the MLS® | |
| 23 hours ago | Listing first seen on site |
© 2020 North Texas Real Estate Information Systems. All rights reserved. Information is deemed reliable but is not guaranteed accurate by the MLS or NTREIS. The information being provided is for the consumer's personal, non-commercial use, and may not be reproduced, redistributed, or used for any purpose other than to identify prospective properties consumers may be interested in purchasing.
Last checked: 2026-01-14 01:09 PM CST

Did you know? You can invite friends and family to your search. They can join your search, rate and discuss listings with you.